10 Carroll Street




























Description
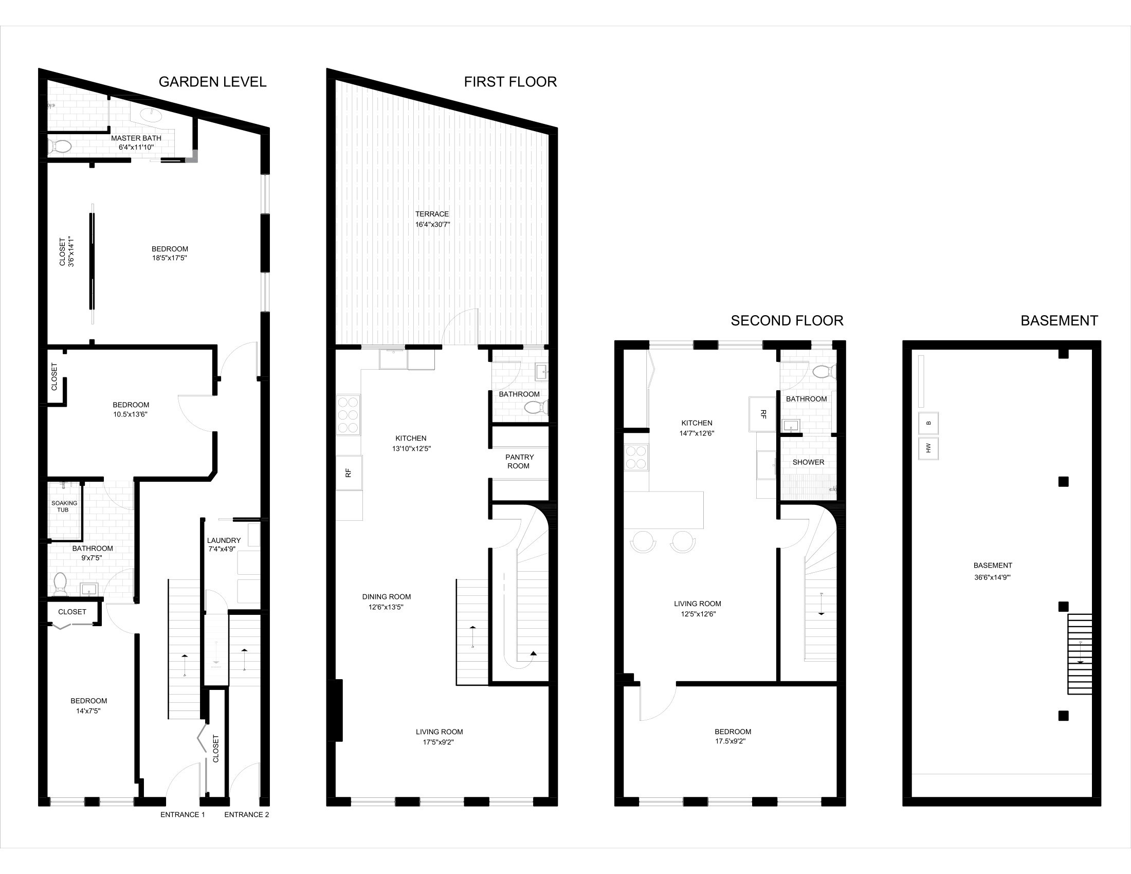
Welcome to 10 Carroll Street, a beautifully renovated two-family townhouse offering a spacious three-bedroom duplex plus a full-floor one-bedroom apartment. Renovated in 2025, this residence blends modern luxury with smart investment opportunity.
Main Duplex Residence
The upper duplex is a showstopper, featuring a chef's kitchen complete with:
Custom cabinetry
Marble countertops
48” Wolf range with pot filler
Farm sink...Why settle for a condo when you can own an entire home—with rental income potential?
Welcome to 10 Carroll Street, a beautifully renovated two-family townhouse offering a spacious three-bedroom duplex plus a full-floor one-bedroom apartment. Renovated in 2025, this residence blends modern luxury with smart investment opportunity.
Main Duplex Residence
The upper duplex is a showstopper, featuring a chef's kitchen complete with:
Custom cabinetry
Marble countertops
48” Wolf range with pot filler
Farm sink
Wine fridge
Stainless steel appliances
Walk-in pantry
High ceilings and abundant natural light
Living/Dining areas
Powder Room
Enjoy seamless indoor/outdoor living with an open-concept living and dining area that flows onto a private terrace—outfitted for an outdoor kitchen—perfect for entertaining. Unobstructed views of the community garden.
Downstairs, you'll find:
A serene primary suite with en-suite spa bathroom featuring multi-spray Grohe fixtures, double sinks, makeup vanity, and generous closet space
Two additional spacious bedrooms with a shared full bath and a granite soaking tub
Radiant heated floors throughout
In-unit laundry area with basement access
Additional features include split-system central A/C and beautiful wood flooring throughout.
Flexible Living or Income Potential
The top floor offers a large one-bedroom apartment—perfect for generating rental income, hosting guests, or converting the home into a single-family residence.
Prime Location
Nestled in the Columbia Waterfront District- you’re just moments from some of Brooklyn’s best:
Dining: Cafe Spaghetti, Red Hook Tavern, Lucali's, Swoony's, and more
Recreation: Short walk to parks, the Brooklyn Bridge Park , and Red Hook Ferry
Transit: F/G train is a 10-minute walk away
Listing Agents
lisa.lonuzzi@compass.comP: (917)-747-2942
christina.lonuzzi@compass.comP: (917)-685-2300
Amenities
- Parking Included
- Lowrise
Property Details for 10 Carroll Street
| Status | Active |
|---|---|
| Days on Market | 8 |
| Taxes | $450 / month |
| Maintenance | - |
| Min. Down Pymt | - |
| Total Rooms | 10.0 |
| Compass Type | Townhouse |
| MLS Type | Single Family |
| Year Built | 1931 |
| Lot Size | 1,118 SF / 20' x 56' |
| County | Kings County |
| Buyer's Agent Compensation | 2.5% |
Building
10 Carroll St
Location
Building Information for 10 Carroll Street
Payment Calculator
$13,549 per month
30 year fixed, 6.845% Interest
$13,099
$450
$0
Property History for 10 Carroll Street
| Date | Event & Source | Price | Appreciation |
|---|---|---|---|
| Aug 19, 2025 | Listed (Active) Manual | $2,500,000 | — |
| Jun 22, 2024 | Contract Signed Manual | — | |
| Mar 14, 2024 | Listed (Active) Manual | $2,650,000 | — |
| Jan 19, 2024 | Temporarily Off Market Manual | — | |
| Nov 7, 2023 | Listed (Active) Manual | $2,977,000 | — |
| Date | Event & Source | Price |
|---|---|---|
| 08/19/2025 | Listed (Active) Manual | $2,500,000 |
| 06/22/2024 | Contract Signed Manual | — |
| 03/14/2024 | Listed (Active) Manual | $2,650,000 |
| 01/19/2024 | Temporarily Off Market Manual | — |
| 11/07/2023 | Listed (Active) Manual | $2,977,000 |
For completeness, Compass often displays two records for one sale: the MLS record and the public record.
Public Records for 10 Carroll Street
Schools near 10 Carroll Street
Rating | School | Type | Grades | Distance |
|---|---|---|---|---|
| Public - | PK to 5 | |||
| Public - | 6 to 12 | |||
| Public - | PK to 5 | |||
| Public - | 9 to 12 |
Rating | School | Distance |
|---|---|---|
P.S. 58 The Carroll PublicPK to 5 | ||
Brooklyn Secondary School For Collaborative Studie Public6 to 12 | ||
Brooklyn New School-PS 146 (The) PublicPK to 5 | ||
South Brooklyn Community High School Public9 to 12 |
School ratings and boundaries are provided by GreatSchools.org and Pitney Bowes. This information should only be used as a reference. Proximity or boundaries shown here are not a guarantee of enrollment. Please reach out to schools directly to verify all information and enrollment eligibility.
Neighborhood Map and Transit
Similar Homes
Similar Sold Homes
Homes for Sale near Columbia Street Waterfront
No guarantee, warranty or representation of any kind is made regarding the completeness or accuracy of descriptions or measurements (including square footage measurements and property condition), such should be independently verified, and Compass expressly disclaims any liability in connection therewith. Photos may be virtually staged or digitally enhanced and may not reflect actual property conditions. Offers of compensation are subject to change at the discretion of the seller. No financial or legal advice provided. Equal Housing Opportunity.
This information is not verified for authenticity or accuracy and is not guaranteed and may not reflect all real estate activity in the market. ©2025 The Real Estate Board of New York, Inc., All rights reserved. The source of the displayed data is either the property owner or public record provided by non-governmental third parties. It is believed to be reliable but not guaranteed. This information is provided exclusively for consumers’ personal, non-commercial use. The data relating to real estate for sale on this website comes in part from the IDX Program of OneKey® MLS. Information Copyright 2025, OneKey® MLS. All data is deemed reliable but is not guaranteed accurate by Compass. See Terms of Service for additional restrictions. Compass · Tel: 212-913-9058 · New York, NY Listing information for certain New York City properties provided courtesy of the Real Estate Board of New York’s Residential Listing Service (the "RLS"). The information contained in this listing has not been verified by the RLS and should be verified by the consumer. The listing information provided here is for the consumer’s personal, non-commercial use. Retransmission, redistribution or copying of this listing information is strictly prohibited except in connection with a consumer's consideration of the purchase and/or sale of an individual property. This listing information is not verified for authenticity or accuracy and is not guaranteed and may not reflect all real estate activity in the market. ©2025 The Real Estate Board of New York, Inc., all rights reserved. This information is not guaranteed, should be independently verified and may not reflect all real estate activity in the market. Offers of compensation set forth here are for other RLSParticipants only and may not reflect other agreements between a consumer and their broker.©2025 The Real Estate Board of New York, Inc., All rights reserved.





























