545 West 110th Street, Unit PH11A






















Description
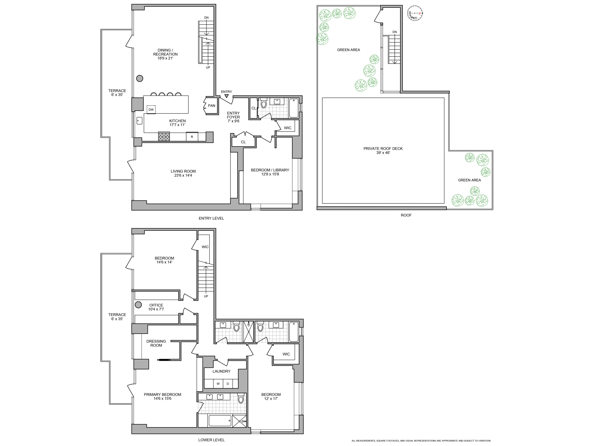
Enter this home on the 11th floor where there is a gracious foyer, an oversized living room with a ventless fireplace. The south facing living room can...This unique, sun-drenched, triplex penthouse home has 4 bedrooms, 4 full bathrooms and was originally designed for the developer himself. It features floor to ceiling windows, 3 exposures, 2 south facing 35’ terraces, and a beautifully landscaped 1250 square foot roof deck with open city views; you can even see the river and Empire State Building!
Enter this home on the 11th floor where there is a gracious foyer, an oversized living room with a ventless fireplace. The south facing living room can also easily fit a dining table and seating area. The fabulous windowed chef’s kitchen has custom wood cabinetry allowing for ample storage and pantry space, white marble countertops, a 6-burner stove, 46 inch Subzero refrigerator, garbage disposal, and other top-of-the-line appliances. The great room off of the kitchen can be used as a formal dining room and/or den. On this floor you can also find a beautiful custom Urban Archeology full bathroom with Water Works fixtures, a large library or fourth bedroom with custom woodwork, and several large closets, including a walk-in.
On the lower level you can find 3 gracious bedrooms, a large windowed office and a separate laundry room with side-by-side washer/dryer and storage. The master bedroom faces South and has access to an additional 35' terrace. There is also a large custom designed dressing room/walk-in closet with a window. The master bathroom features a custom Urban Archeology double sink and medicine cabinets, separate bathtub and glass shower with Water Works fixtures. The two additional bedrooms both have great light and walk-in closets. One bedroom faces South and has terrace access and is serviced by a hall bathroom while the other faces North and East and has an en-suite bathroom.
The top floor of this home is a stunning, private, beautifully planted roof deck with lots of space to entertain and amazing River and City views. The entire apartment is wired for sound with electric shades. There is central air conditioning, maple floors, sound proofed walls, and 9.5 foot ceilings throughout.
545 West 110th Street is an intimate, 11 story, full service condominium built in 2006. It offers a gym, terrace, playroom, bike room, storage, garage and is pet friendly. There are full time doormen and a resident manager. Located in fabulous Morningside Heights, it is convenient to the best transportation, great restaurants, Riverside Park and Columbia University.
Listing Agents
dderisi@compass.comP: (516)-817-9841
marissa.galletti@compass.comP: (914)-588-6433
Amenities
- Full-Time Doorman
- Common Roof Deck
- Common Outdoor Space
- Gym
- Playroom
- Fireplace
- Hardwood Floors
- Oversized Windows
Property Details for 545 West 110th Street, Unit PH11A
| Status | Active |
|---|---|
| Days on Market | 2 |
| Taxes | $4,734 / month |
| Common Charges | $5,518 / month |
| Min. Down Pymt | 10% |
| Total Rooms | 9.0 |
| Compass Type | Condo |
| MLS Type | - |
| Year Built | 2006 |
| County | New York County |
| Buyer's Agent Compensation | 3% |
Building
545 W 110th St
Location
Building Information for 545 West 110th Street, Unit PH11A
Payment Calculator
$51,483 per month
30 year fixed, 6.845% Interest
$41,231
$4,734
$5,518
Property History for 545 West 110th Street, Unit PH11A
| Date | Event & Source | Price | Appreciation |
|---|---|---|---|
| Aug 25, 2025 | Listed (Active) Manual | $6,995,000 | — |
| Jan 1, 2025 | Temporarily Off Market Manual | — |
| Date | Event & Source | Price |
|---|---|---|
| 08/25/2025 | Listed (Active) Manual | $6,995,000 |
| 01/01/2025 | Temporarily Off Market Manual | — |
For completeness, Compass often displays two records for one sale: the MLS record and the public record.
Schools near 545 West 110th Street, Unit PH11A
Rating | School | Type | Grades | Distance |
|---|---|---|---|---|
| Public - | PK to 5 | |||
| Public - | 6 to 8 | |||
| Public - | 6 to 12 | |||
| Public - | 6 to 8 |
Rating | School | Distance |
|---|---|---|
P.S. 165 Robert E Simon PublicPK to 5 | ||
Mott Hall Ii Public6 to 8 | ||
Young Women's Leadership School Public6 to 12 | ||
Jhs 54 Booker T Washington Public6 to 8 |
School ratings and boundaries are provided by GreatSchools.org and Pitney Bowes. This information should only be used as a reference. Proximity or boundaries shown here are not a guarantee of enrollment. Please reach out to schools directly to verify all information and enrollment eligibility.
Neighborhood Map and Transit
Similar Homes
Similar Sold Homes
Homes for Sale near Morningside Heights
No guarantee, warranty or representation of any kind is made regarding the completeness or accuracy of descriptions or measurements (including square footage measurements and property condition), such should be independently verified, and Compass expressly disclaims any liability in connection therewith. Photos may be virtually staged or digitally enhanced and may not reflect actual property conditions. Offers of compensation are subject to change at the discretion of the seller. No financial or legal advice provided. Equal Housing Opportunity.
This information is not verified for authenticity or accuracy and is not guaranteed and may not reflect all real estate activity in the market. ©2025 The Real Estate Board of New York, Inc., All rights reserved. The source of the displayed data is either the property owner or public record provided by non-governmental third parties. It is believed to be reliable but not guaranteed. This information is provided exclusively for consumers’ personal, non-commercial use. The data relating to real estate for sale on this website comes in part from the IDX Program of OneKey® MLS. Information Copyright 2025, OneKey® MLS. All data is deemed reliable but is not guaranteed accurate by Compass. See Terms of Service for additional restrictions. Compass · Tel: 212-913-9058 · New York, NY Listing information for certain New York City properties provided courtesy of the Real Estate Board of New York’s Residential Listing Service (the "RLS"). The information contained in this listing has not been verified by the RLS and should be verified by the consumer. The listing information provided here is for the consumer’s personal, non-commercial use. Retransmission, redistribution or copying of this listing information is strictly prohibited except in connection with a consumer's consideration of the purchase and/or sale of an individual property. This listing information is not verified for authenticity or accuracy and is not guaranteed and may not reflect all real estate activity in the market. ©2025 The Real Estate Board of New York, Inc., all rights reserved. This information is not guaranteed, should be independently verified and may not reflect all real estate activity in the market. Offers of compensation set forth here are for other RLSParticipants only and may not reflect other agreements between a consumer and their broker.©2025 The Real Estate Board of New York, Inc., All rights reserved.























